
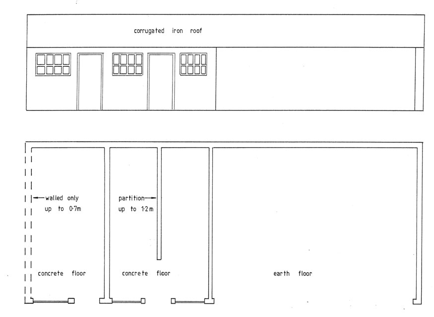
We finally chose corrugated polycarbnate roofing
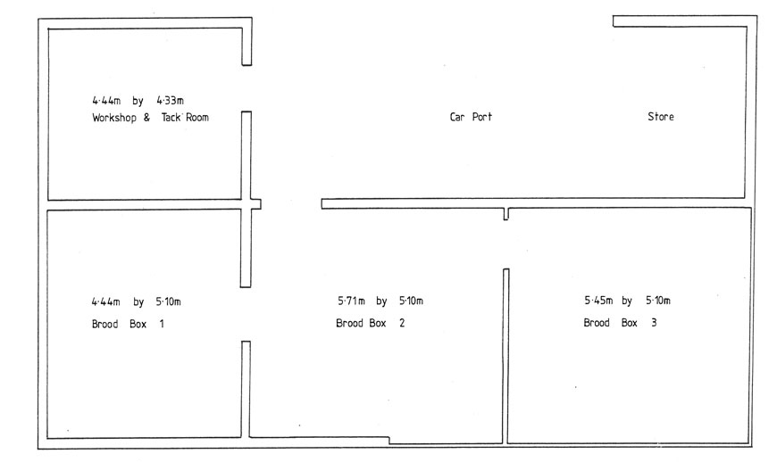
The one designated Workshop and Tack Room became just a Tack Room
The one designated Brood Box 1 became our Workshop
The ones designated Brood Boxes 2 and 3 were used just for storage
Return whence you came